Transport i montaż modułów
- Custom Schema: { "@context": "https://schema.org", "@type": "FAQPage", "mainEntity": [ { "@type": "Question", "name": "W jaki sposób transportuje się moduły?", "acceptedAnswer": { "@type": "Answer", "text": "Moduły Unihouse są transportowane na miejsce budowy głównie drogą lądową, za pomocą samochodów ciężarowych. W wielu przypadkach jest to transport ponadgabarytowy, który może odbywać się tylko nocą. Samochody jadą w konwojach z pilotami z przodu i z tyłu. Największe moduły, które do tej pory wyprodukował Unihouse, miały wymiary szerokości 5,4 m i długości 16 m – projekt Kaldnes Brygge, Tønsberg w Norwegii. W przypadku dalszych dystansów, szczególnie międzynarodowych, mogą być również wykorzystywane transporty morskie. Moduły są odpowiednio pakowane i zabezpieczane, aby zapewnić bezpieczeństwo i integralność podczas transportu, dzięki czemu nawet moduły z pełnym wykończeniem wewnętrznym docierają na plac budowy w nienaruszonym stanie." } }, { "@type": "Question", "name": "Ile waży moduł?", "acceptedAnswer": { "@type": "Answer", "text": "Zależnie od gabarytu i wykończenia oraz wyposażenia w środku moduł może ważyć od kilku ton do około 20 ton." } }, { "@type": "Question", "name": "Jak długo trwa montaż jednego modułu i ile modułów można zamontować w jeden dzień?", "acceptedAnswer": { "@type": "Answer", "text": "Na budowie w ciągu jednego dnia można zmontować od 8 do 12 modułów, w zależności od warunków. Produkcja jednego modułu w fabryce trwa od 11 do 20 dni, w zależności od jego skomplikowania i wykończenia wewnętrznego. Montaż modułu jako elementu 3D w fabryce zajmuje kilka godzin. W fabryce firma Unihouse jest w stanie wyprodukować średnio około 5-6 modułów dziennie, biorąc pod uwagę dni robocze. Powyższa liczba zależy od wielu czynników, takich jak złożoność projektu, wymagania klienta oraz warunki pracy." } }, { "@type": "Question", "name": "Jakie największe pomieszczenie można zrobić w modułach?", "acceptedAnswer": { "@type": "Answer", "text": "Nie ma ograniczeń. Moduły można łączyć ze sobą, dlatego w technologii modułowej istnieje możliwość budowy szkół i przedszkoli, gdzie występują pomieszczenia takie jak klasy lekcyjne." } }, { "@type": "Question", "name": "Ile czasu trwa budowa z modułów, o ile jest szybsza od budownictwa tradycyjnego?", "acceptedAnswer": { "@type": "Answer", "text": "Czas budowy w technologii modułowej jest krótszy, ponieważ wiele etapów produkcji odbywa się w fabryce, co minimalizuje wpływ niekorzystnych warunków pogodowych i innych opóźnień związanych z placem budowy. Prefabrykacja przyspiesza znacznie cały proces budowlany i sprawia, że jest to bardzo atrakcyjna opcja dla projektów wymagających szybkiej realizacji." } }, { "@type": "Question", "name": "Jak przebiega proces budowlany wykonania budynku w modułach?", "acceptedAnswer": { "@type": "Answer", "text": "Proces budowy z modułów składa się z kilku etapów:\n\n1. Projektowanie z wykorzystaniem BIM.\n2. Produkcja podłóg i sufitów.\n3. Produkcja ścian.\n4. Montaż modułów.\n5. Prace wykończeniowe.\n6. Montaż mebli kuchennych, armatury łazienkowej.\n7. Transport gotowych modułów.\n8. Montaż modułów na placu budowy." } }, { "@type": "Question", "name": "Jak się łączy moduły? Czy można łączyć moduły?", "acceptedAnswer": { "@type": "Answer", "text": "Moduły można łączyć zarówno poprzecznie, jak i podłużnie. W dużych budynkach stosuje się łączenia pionowe i poziome. Są to połączenia techniczne, związane ze statyką budynku, a także połączenia instalacji (kabli, rur) oraz elementów elewacji, dachu i wnętrz. Po zakończeniu montażu i wykończenia budynek modułowy zazwyczaj nie różni się wyglądem od tradycyjnego." } }, { "@type": "Question", "name": "Jak się łączy instalacje pomiędzy modułami?", "acceptedAnswer": { "@type": "Answer", "text": "Każdy moduł, już na etapie produkcji, jest wyposażany w komplet instalacji. Instalacje wodne są sprawdzane pod kątem szczelności zgodnie z przepisami, a instalacje elektryczne (kable) – testowane. Po dostarczeniu modułów na budowę i zmontowaniu całego budynku za pomocą dźwigu następuje połączenie instalacji z poszczególnych modułów w całość. Podczas produkcji pozostawiane są specjalne miejsca (rewizje), w których instalacje będą łączone. Po sprawdzeniu szczelności połączeń rewizje są zamykane – czasem na stałe, a czasem z możliwością późniejszego otwierania i dostępu technicznego do tych miejsc." } } ] }
Transport i montaż modułów
[arrow-down]Nowoczesne budownictwo modułowe wyróżnia się zastosowaną technologią. Drewniane moduły, z których będzie się składać zaprojektowany obiekt, powstają w fabryce – na nowoczesnej linii produkcyjnej. Następnym krokiem jest transport modułów na plac budowy, gdzie zespół Unihouse przeprowadza ich montaż. Efektem jest estetyczny, funkcjonalny i efektywny energetycznie budynek.
Kompleksowy zakres usług – transport i montaż modułów Unihouse
Wszystkie moduły, z których powstają budynki modułowe mieszkalne, są montowane w fabryce. Kontrolowane środowisko produkcji sprawia, że prace są wykonywane zgodnie z ustalonym harmonogramem – bez opóźnień spowodowanych np. warunkami atmosferycznymi. Możliwa jest również ścisła kontrola jakości, co przekłada się na efekt końcowy i satysfakcję przyszłych mieszkańców. Realizujemy projekt zgodnie z wizją i oczekiwaniami inwestora, również w wersji pod klucz. Ale gotowe moduły należy jeszcze ze sobą połączyć. To zadanie odbywa się już na placu budowy, na który moduły trzeba przetransportować. Transport modułów – podobnie jak ich montaż – jest realizowany przez naszych doświadczonych pracowników.
Transport modułów może odbywać się nie tylko podczas budowy obiektu mieszkalnego – trzeba pamiętać, że budynki modułowe mogą być rozbudowywane i nadbudowywane. Wówczas, po wykonaniu w fabryce dodatkowych modułów, pozostaje je jedynie przewieźć i połączyć z już istniejącą konstrukcją. Jest to możliwe, gdyż poszczególne moduły są projektowane jako całe pomieszczenia (wraz z instalacjami i wyposażeniem) lub części większych pomieszczeń. Innym przypadkiem, gdy niezbędny jest transport modułów, jest demontaż budynku – technologia modułowa umożliwia przenoszenie już wybudowanych obiektów do innej lokalizacji.
UNIHOUSE SA
ul. Rejonowa 5,
17-100 Bielsk Podlaski
(+48) 85 730 34 77
info@unihouse.pl
Administratorem Twoich danych osobowych jest firma UNIHOUSE S.A., ul. Rejonowa 5, 17-100 Bielsk Podlaski.
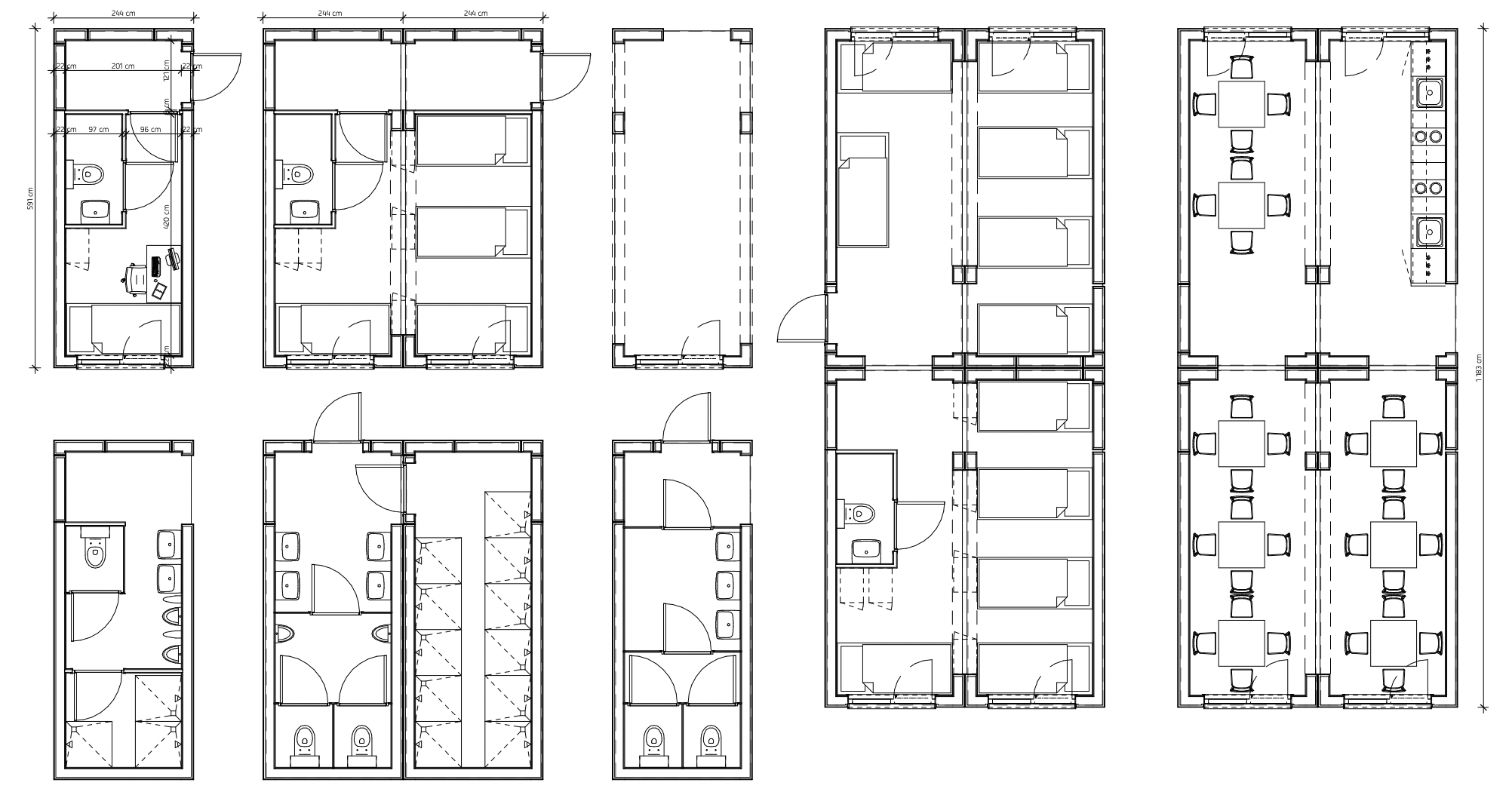
Jak wygląda transport i montaż modułów budynków wielorodzinnych?
Budownictwo modułowe ma wiele przewag w porównaniu z budownictwem tradycyjnym. Jedną z nich jest krótki okres realizacji inwestycji. Transport i montaż prefabrykowanych modułów o szkielecie drewnianym Unihouse może odbywać się o każdej porze roku. Gotowe moduły są lekkie i łatwe w przewożeniu – na plac budowy mogą zostać przetransportowane zarówno drogą lądową (samochodami), jak i morską (statkami). Brak konieczności stosowania specjalistycznego sprzętu obniża koszty przeprowadzenia operacji.
Jak wygląda montaż modułów budynków wielorodzinnych? Dla inwestorów kluczowe mogą być następujące informacje:
- montaż jednego modułu zajmuje co najwyżej 2 godziny – budynek rośnie z godziny na godzinę, w konsekwencji czego często zostaje on oddany do użytku już po kilku miesiącach od rozpoczęcia prac projektowych;
- ponieważ moduły są lekkie, a ich rozmiary zbliżone, łatwo nimi manipulować na placu budowy – to kolejna zaleta budownictwa modułowego;
- łączenie poszczególnych modułów odbywa się z wykorzystaniem dźwigu – nie jest potrzebny inny specjalistyczny sprzęt, co pozwala zarówno obniżyć koszty, jak i skrócić czas montażu prefabrykowanych elementów;
- prace na placu budowy nie kończą się z momentem połączenia wszystkich modułów – pozostaje jeszcze wykonanie estetycznej elewacji zgodnie z projektem.
Profesjonalny transport i montaż modułów – wybierz Unihouse!
Planujesz budowę modułowego obiektu mieszkalnego? W Unihouse zajmujemy się tym na co dzień. Inwestorzy mogą liczyć na kompleksowe wsparcie – zajmujemy się projektowaniem i wykonaniem modułów. Samodzielnie organizujemy transport modułów i następnie łączymy je w docelową konstrukcję. Sprawdź nasze realizacje – zaufaj naszemu doświadczeniu.
Przykładowe realizacje
Obszary działalności Unihouse
-
Żłobki modułoweŻłobki modułowe
-
Szkoły modułoweSzkoły modułowe
-
Przedszkola modułowePrzedszkola modułowe
-
Hotele i akademiki modułoweHotele i akademiki modułowe
-
Modułowe hotele pracowniczeModułowe hotele pracownicze
-
Bloki, osiedla modułoweBloki, osiedla modułowe
-
Komunalne mieszkania modułowe - simyKomunalne mieszkania modułowe - simy
-
Domy opieki modułoweDomy opieki modułowe
-
Posterunki policji modułowePosterunki policji modułowe
-
Koszary wojskowe modułoweKoszary wojskowe modułowe
Transport i montaż modułów - FAQ
-
W jaki sposób transportuje się moduły?
Moduły Unihouse są transportowane na miejsce budowy głównie drogą lądową, za pomocą samochodów ciężarowych. W wielu przypadkach jest to transport ponadgabarytowy, który może odbywać się tylko nocą. Samochody jadą w konwojach z pilotami z przodu i z tyłu. Największe moduły, które do tej pory wyprodukował Unihouse miały wymiary szerokości 5,4 m i długości 16 m – projekt Kaldnes Brygge, Tønsberg w Norwegii. W przypadku dalszych dystansów, szczególnie międzynarodowych, mogą być również wykorzystywane transporty morskie. Unihouse ma wieloletnie doświadczenie w organizowaniu transportów i logistyki dostaw na miejsce budowy, zarówno w Polsce, jak i za kołem podbiegunowym w Norwegii. Niezależnie od metody, moduły są odpowiednio pakowane i zabezpieczane, aby zapewnić bezpieczeństwo i integralność podczas transportu. Dzięki temu nawet moduły z pełnym wykończeniem wewnętrznym docierają na plac budowy w nienaruszonym stanie.
-
Ile waży moduł?
Zależnie od gabarytu i wykończenia oraz wyposażenia w środku od kilku ton do około 20 ton.
-
Jak długo trwa montaż jednego modułu i ile modułów można zamontować w jeden dzień?
Na budowie w ciągu jednego dnia można zmontować od 8 do 12 modułów, w zależności od warunków. Produkcja jednego modułu w fabryce trwa od 11 do 20 dni, w zależności od jego skomplikowania i wykończenia wewnętrznego. Montaż modułu jako elementu 3D w fabryce zajmuje kilka godzin. W fabryce firma Unihouse jest w stanie wyprodukować średnio około 5-6 modułów dziennie, biorąc pod uwagę dni robocze i mając świadomość, że jest to wartość uśredniona. Należy pamiętać, że powyższa liczba zależy od wielu czynników, takich jak złożoność projektu, wymagania klienta oraz warunki pracy.
-
Jakie największe pomieszczenie można zrobić w modułach?
Nie ma ograniczeń. Moduły można łączyć ze sobą, dlatego w technologii modułowej istnieje możliwość budowy szkół i przedszkoli, gdzie występują pomieszczenia takie jak klasy lekcyjne.
-
Ile czasu trwa budowa z modułów, o ile jest szybsza od budownictwa tradycyjnego?
Czas budowy w technologii modułowej jest krótszy, ponieważ wiele etapów produkcji odbywa się w fabryce, co minimalizuje wpływ niekorzystnych warunków pogodowych i innych opóźnień związanych z placem budowy. Jest możliwość jednoczesnego wykonywania wiele etapów projektu jednocześnie, np. na budowie powstają fundamenty, a w fabryce produkuje się jednocześnie kilka pięter budynku. Prefabrykacja przyspiesza znacznie cały proces budowlany i sprawia, że jest to bardzo atrakcyjna opcja dla projektów wymagających szybkiej realizacji.
-
Jak przebiega proces budowlany wykonania budynku w modułach?
Proces budowy z modułów składa się z kilku etapów:
- Projektowanie z wykorzystaniem BIM.
- Produkcja podłóg i sufitów.
- Produkcja ścian.
- Montaż modułów.
- Prace wykończeniowe.
- Montaż mebli kuchennych, armatury łazienkowej.
- Transport gotowych modułów.
- Montaż modułów na placu budowy.
Zachęcamy do zapoznania się z informacjami jak wygląda proces produkcji w Unihouse.
-
Jak się łączy moduły? Czy można łączyć moduły?
Moduły można łączyć zarówno poprzecznie, jak i podłużnie. W dużych budynkach stosuje się łączenia pionowe i poziome. Są to połączenia techniczne, związane ze statyką budynku, a także połączenia instalacji (kabli, rur) oraz elementów elewacji, dachu i wnętrz. Po zakończeniu montażu i wykończenia budynek modułowy zazwyczaj nie różni się wyglądem od tradycyjnego.
-
Jak się łączy instalacje pomiędzy modułami?
Każdy moduł, już na etapie produkcji, jest wyposażany w komplet instalacji. Instalacje wodne są sprawdzane pod kątem szczelności zgodnie z przepisami, a instalacje elektryczne (kable) – testowane. Po dostarczeniu modułów na budowę i zmontowaniu całego budynku za pomocą dźwigu następuje połączenie instalacji z poszczególnych modułów w całość. Podczas produkcji pozostawiane są specjalne miejsca (rewizje), w których instalacje będą łączone. Po sprawdzeniu szczelności połączeń rewizje są zamykane – czasem na stałe, a czasem z możliwością późniejszego otwierania i dostępu technicznego do tych miejsc.















