Konsekwencją współczesnych wyzwań w sferze bezpieczeństwa narodowego jest potrzeba rozległej i szybkiej rozbudowy infrastruktury wojskowej. To duże wyzwanie – istotne są nie tylko koszty, ale również czas realizacji inwestycji i zachowanie najwyższych standardów. Rozwiązaniem tych problemów mogą być modułowe budynki dla wojska. W czym przejawia się przewaga technologii modułowej w kontekście potrzeb związanych z modernizacją i rozbudową sił zbrojnych?
Modułowe budynki wojskowe – czym się wyróżniają?
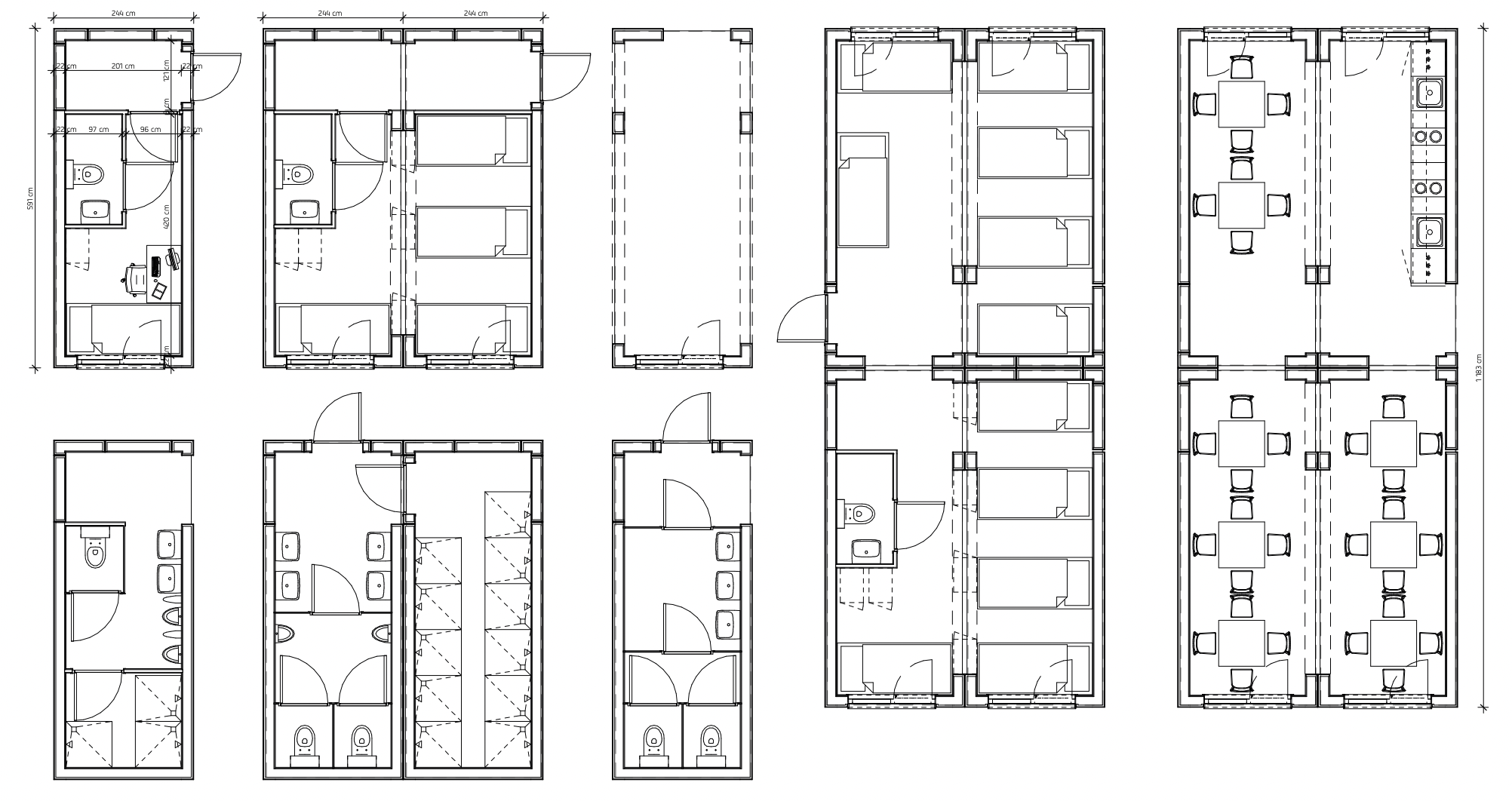
Budynki wojskowe muszą spełniać określone w przepisach normy i standardy. Modułowe budynki wojskowe Unihouse w pełni odpowiadają współczesnym wymogom. Mimo że do ich budowy wykorzystywane jest m.in. drewno, to na etapie produkcji poszczególnych modułów ich szkielet zostaje odpowiednio zabezpieczony przed różnymi czynnikami, w tym ogniem. W konsekwencji budynki są trwałe i posiadają niezbędną ochronę przeciwpożarową. Mimo że z perspektywy wojska kwestie bezpieczeństwa są kluczowe, to za wyborem modułowych obiektów wojskowych Unihouse przemawia więcej argumentów.
Koszary modułowe oferowane przez Unihouse są w pełni wykończone. W praktyce oznacza to, że moduły, które zostają przywiezione na plac budowy, posiadają wszystkie niezbędne instalacje oraz są wyposażone zgodnie z zatwierdzonym przez inwestora projektem. Modułowe budynki wojskowe można zatem zacząć użytkować natychmiast po połączeniu poszczególnych modułów. Dla wojska czas ma duże znaczenie – budownictwo modułowe odpowiada na tę szczególną potrzebę.
Modułowe obiekty wojskowe – pozostałe zalety:
- niskie koszty eksploatacji – budownictwo modułowe wykorzystuje energooszczędne technologie, dzięki czemu koszty m.in. ogrzewania są niskie;
- możliwość łatwej rozbudowy – koszary modułowe mogą zostać rozbudowane, a czas potrzebny na dostawienie dodatkowych pomieszczeń jest krótki;
- możliwość transportu – lekkie moduły mogą zostać przetransportowane w dowolne miejsce, co z perspektywy wojska jest kluczową cechą.
